Casa indipendente in vendita

Guiglia, Via Ca` Rodolfi - Casa Rodolfi
€ 65.000
5 locali 5 locali
160 Mq 160 Mq
2 bagni 2 bagni

Casa indipendente in vendita

Guiglia, Via Ca` Rodolfi - Casa Rodolfi

Descrizione annuncio

GUIGLIA - CA'RODOLFI

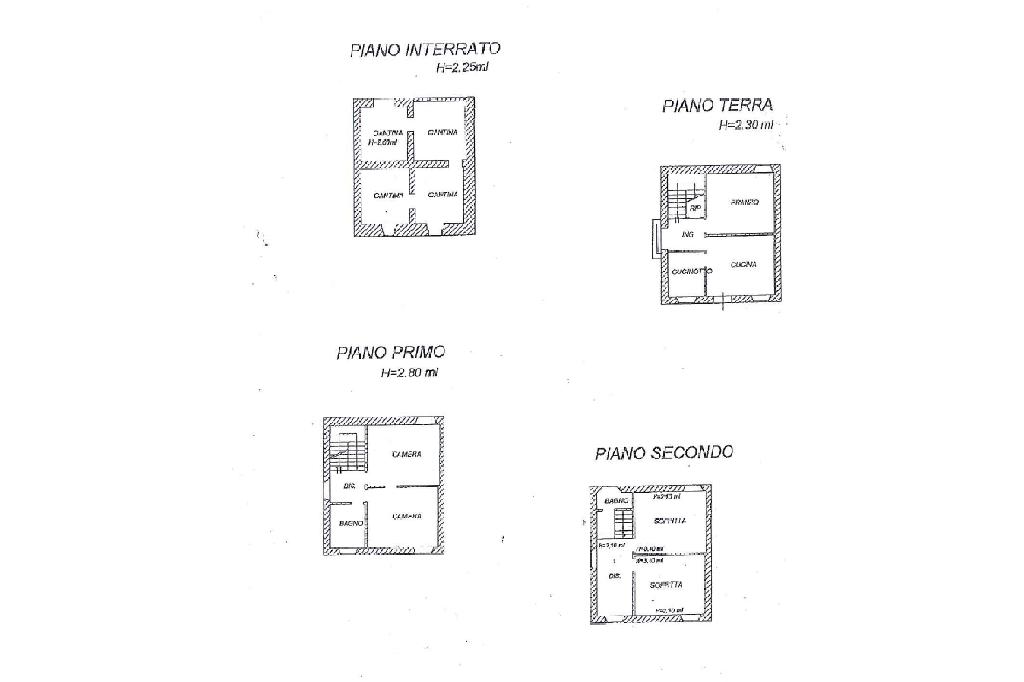
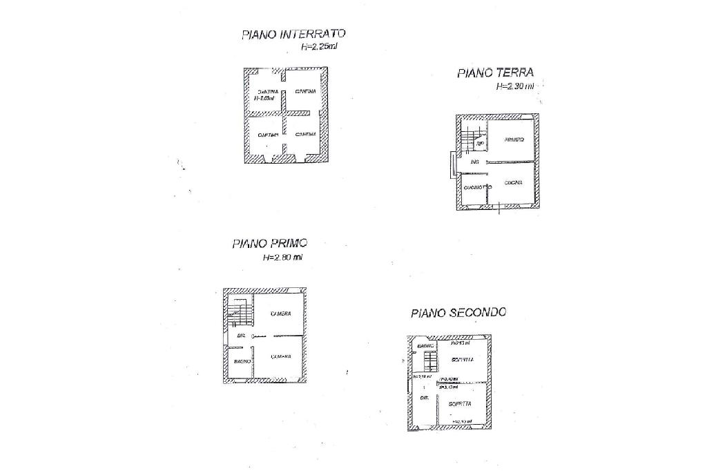
L'agenzia immobiliare Tecnocasa di Vignola, sita in via Nino Tavoni propone in vendita in caratteristico borgo soluzione indipendente terra cielo con giardino di proprietà fronte e retro.


L'immobile è costituito ingresso da sala, cucina e cucinotto al piano terra, 2 camere da letto al piano primo con bagno e 2 camere da letto e bagno al piano secondo.

Completano la soluzione 4 cantine al piano interrato e giardino di pertinenza di 153mq

La soluzione è da ristrutturare internamente.

Per informazioni o per fissare un appuntamento chiamare il numero 059761002 oppure inviare una mail a moha1

Mostra tutto

Nelle vicinanze

Farmacia Farmacia
Farmacia Martinelli Rita
1,1 Km
Negozi Negozi
Fratelli Marchetti
2,6 Km
Ristoranti Ristoranti
Trattoria Il Castagneto
230 m
La Lanterna
1,3 Km
Agriturismo Cà Rastelli
2,2 Km
Locanda del Parco
2,7 Km
Agriturismo Cassanello
2,7 Km
Mostra tutto

Caratteristiche

Rif.:
60924605
Piano:
Su più livelli di 3
Totale piani:
3
Camere da letto:
4
Arredamento:
Assente
Condizionamento:
Assente
Mostra tutto
Prezzo Prezzo
€ 65.000
Rata mutuo Rata mutuo
€ 300 / mese
Spese annue Spese annue
€ 0
Proponi il tuo prezzoProponi il tuo prezzo

Classe Energetica

G
G
G
G
G
G
G
G
G
EP globale non rinnovabile:
851.18 kW h/m² anno
EP globale rinnovabile:
0.00 kW h/m² anno
EP invernale del fabbricato:
EP estiva del fabbricato:
Anno di costruzione:
1800
Riscaldamento:
Autonomo
Tipo impianto:
A stufa
Tipo alimentazione:
Altro

Ti interessa visionare l'immobile?

Fissa un appuntamento  Fissa un appuntamento

Richiedi informazioni

* Questi campi sono obbligatori

Calcola il tuo mutuo

Semplice e senza impegno
Anticipo

( % )
Mutuo

( % )

pochi semplici passi

inserisci i tuoi dati
Questionario completato
Grazie per aver richiesto un appuntamento senza impegno con un nostro Consulente del Credito e Assicurativo.

Hai inserito correttamente tutti i dati necessari e a breve riceverai una e-mail con un link da convalidare per inviare i tuoi dati.
Affiliato
Tecnovignola Srl
Via Nino Tavoni, 1 41058 Vignola (MO)

Il nostro staff


  • Elena Vezzani
    Affiliata

  • Fabrizio Bassetto
    Affiliato

  • Laura Cavazzoni
    Coordinatrice

  • Ylenia La Marca
    Coordinatrice

  • Riccardo Savorani
    Collaboratore
Via Nino Tavoni, 1 41058 Vignola (MO)
Zona: Vignola – Savignano S.P. – Marano S.P. – Castelvetro di Modena – Guiglia – Spilamberto
Mostra su mappa
Orari: Dal lunedì al venerdì dalle ore 9 alle ore 13 e dalle ore 15 alle ore 20. Sabato dalle ore 9 alle ore 13
Affiliato
Tecnovignola Srl
Via Nino Tavoni, 1 41058 Vignola (MO)

2025 Tecnocasa Franchising S.p.A. - P. IVA 08365160152 - Via Monte Bianco 60/A 20089 Rozzano (MI). Ogni agenzia ha un proprio titolare ed è autonoma. Privacy policy | Policy utilizzo | Cookie policy