Trilocale in vendita

Savignano Sul Panaro, Via Claudia - Formica
€ 305.000
3 locali 3 locali
130 Mq 130 Mq
2 bagni 2 bagni

Trilocale in vendita

Savignano Sul Panaro, Via Claudia - Formica

Descrizione annuncio

L'agenzia immobiliare tecnocasa di Vignola, sita in via Nino Tavoni 1, propone nel comune di Savignano sul Panaro, nella tranquilla località di Formica, un immobile sito al primo piano.

Costruito nel 2005 e completamente ristrutturato nel 2021, l'appartamento offre un ambiente moderno e accogliente.

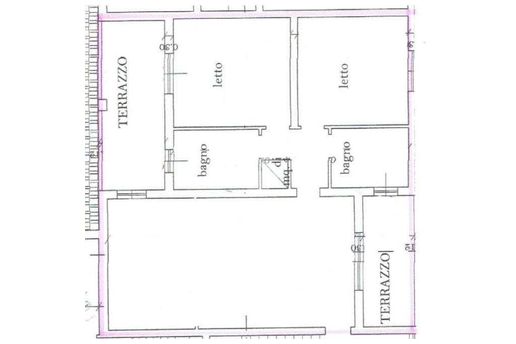
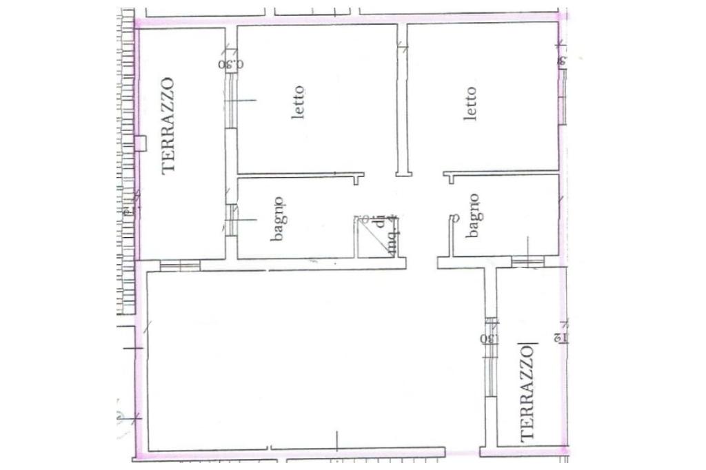
La proprietà si compone di ingresso su sala con angolo cottura, disimpegno notte, due camere matrimoniali e due bagni con doccia.Ideale per chi ama gli spazi aperti e funzionali.

L'immobile vanta due terrazzi che offrono un piacevole affaccio sul verde circostante, perfetti per momenti di relax all'aperto.

Completano la proprieta un autorimessa al piano interrato di mq 40.

La posizione e le caratteristiche dell'appartamento lo rendono una scelta interessante per chi cerca una soluzione abitativa in un contesto tranquillo, senza rinunciare alla comodità e alla modernità.

Per informazioni o per fissare una visita contattare il numero 059 761002 oppure 366 9370581 o inviare una mail a moha1.

Mostra tutto

Nelle vicinanze

Trasporto pubblico Trasporto pubblico
Vignola
Vignola
1,6 Km
Savignano Comune
Savignano Comune
1,9 Km
Serravalle Bivio
Serravalle Bivio
170 m
Zocca Bivio
Zocca Bivio
420 m
Ricariche auto elettriche Ricariche auto elettriche
Savignano sul Panaro Rubicone | EnelX
700 m
Duferco Ospedale di Vignola
1,7 Km
Savignano sul Panaro Artigianato | EnelX
2,2 Km
EnelX fast Savignano sul Panaro
2,2 Km
Hera Parco delle Città Gemellate e Amiche Brodano
2,7 Km
Scuole Scuole
Scuola elementare Arsenio Crespellani
1,4 Km
Scuola Elementare Jacopo Barozzi
1,5 Km
Scuole
1,6 Km
Scuola Primaria G. Mazzini
1,6 Km
Scuola Elementare Cimarosa
2,0 Km
Farmacia Farmacia
Farmacia
1,7 Km
farmacia comunale
2,6 Km
Vignolese
2,6 Km
Farmacia Comunale Giovanna Carbonara
2,8 Km
Ospedali Ospedali
Ospedali
1,7 Km
Supermercati Supermercati
Supermercati
2,2 Km
Coop "I Ciliegi"
2,2 Km
Pam
2,6 Km
conad marcopolo
2,6 Km
Negozi Negozi
Selmi
1,4 Km
Conad
2,4 Km
Tigota
2,6 Km
Bar Bar
Viola
1,5 Km
3001
2,4 Km
Ristoranti Ristoranti
Gallo d'Oro
820 m
La Formica
850 m
Osteria della Luna
1,2 Km
Deniz Kebab
1,4 Km
Pizzeria La Smorfia
1,8 Km
Mostra tutto

Caratteristiche

Rif.:
61139620
Piano:
1 di 2 (Piano basso)
Box:
1
Terrazzi:
2
Camere da letto:
2
Arredamento:
Assente
Mostra tutto
Prezzo Prezzo
€ 305.000
Rata mutuo Rata mutuo
€ 1.416 / mese
Spese annue Spese annue
€ 1.300
Proponi il tuo prezzoProponi il tuo prezzo

Classe Energetica

D
D
D
D
D
D
D
D
D
Anno di costruzione:
2005
Riscaldamento:
Autonomo
Tipo impianto:
Ad aria
Tipo alimentazione:
Aria

Ti interessa visionare l'immobile?

Fissa un appuntamento  Fissa un appuntamento

Richiedi informazioni

Clicca su Leggi per aprire l'informativa
* Questi campi sono obbligatori

Calcola il tuo mutuo

Semplice e senza impegno
Anticipo

( % )
Mutuo

( % )

pochi semplici passi

inserisci i tuoi dati
Questionario completato
Grazie per aver richiesto un appuntamento senza impegno con un nostro Consulente del Credito e Assicurativo.

Hai inserito correttamente tutti i dati necessari e a breve riceverai una e-mail con un link da convalidare per inviare i tuoi dati.
Affiliato
Tecnovignola Srl
Via Nino Tavoni, 1 41058 Vignola (MO)

Il nostro staff


  • Elena Vezzani
    Affiliata

  • Fabrizio Bassetto
    Affiliato

  • Ylenia La Marca
    Collaboratrice

  • Riccardo Savorani
    Collaboratore
Via Nino Tavoni, 1 41058 Vignola (MO)
Zona: Vignola – Savignano S.P. – Marano S.P. – Castelvetro di Modena – Guiglia – Spilamberto
Mostra su mappa
Orari: Dal lunedì al venerdì dalle ore 9 alle ore 13 e dalle ore 15 alle ore 20. Sabato dalle ore 9 alle ore 13
Affiliato
Tecnovignola Srl
Via Nino Tavoni, 1 41058 Vignola (MO)

2026 Tecnocasa Franchising S.p.A. - P. IVA 08365160152 - Via Monte Bianco 60/A 20089 Rozzano (MI). Ogni agenzia ha un proprio titolare ed è autonoma. Privacy policy | Policy utilizzo | Cookie policy