Casa semindipendente in vendita

Savignano Sul Panaro, Via Giosuè Carducci - Mulino
€ 230.000
6 locali 6 locali
191 Mq 191 Mq
1 bagno 1 bagno

Casa semindipendente in vendita

Savignano Sul Panaro, Via Giosuè Carducci - Mulino

Descrizione annuncio

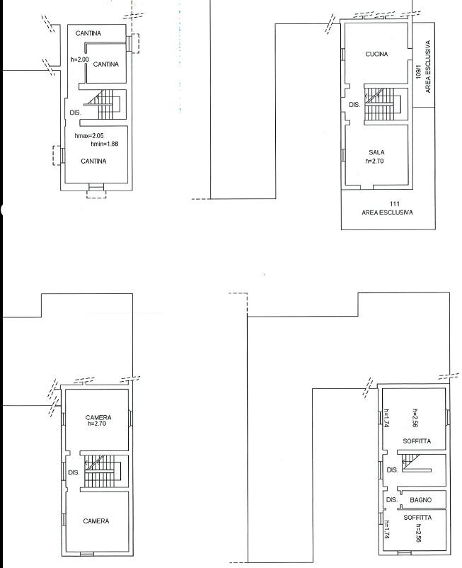
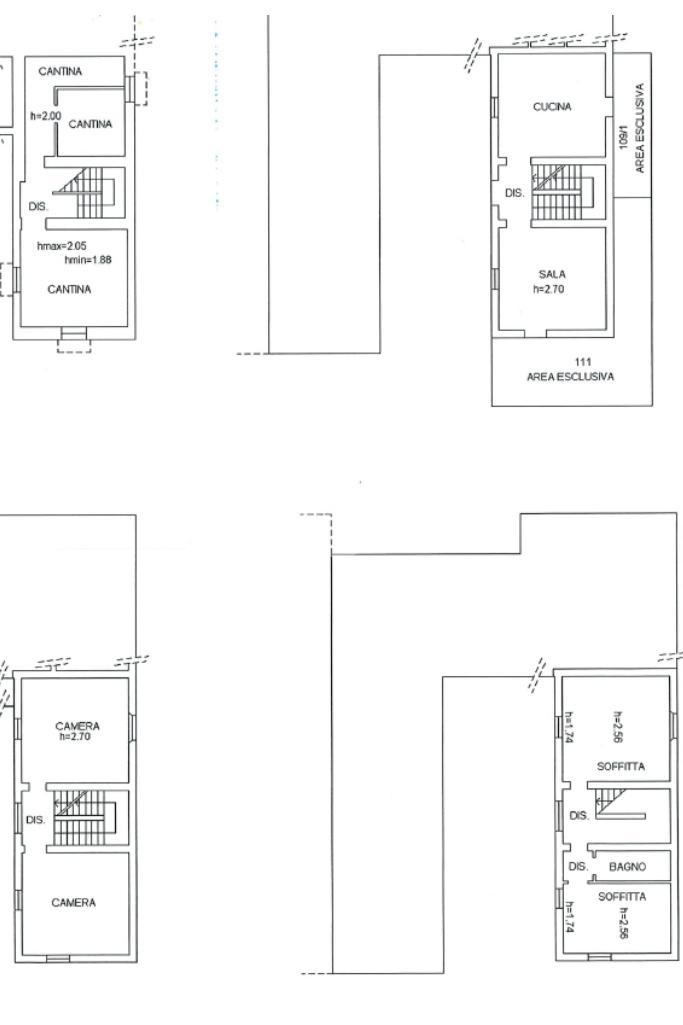
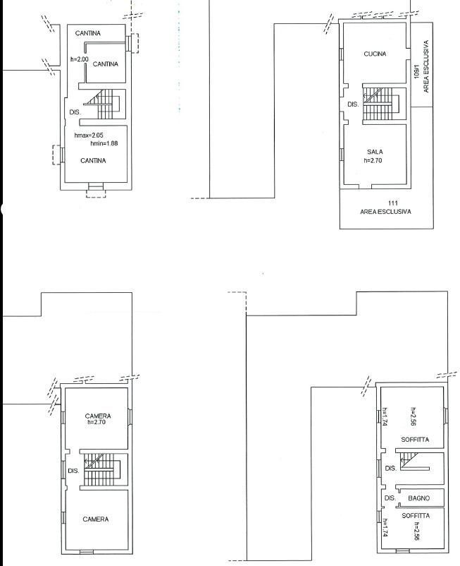
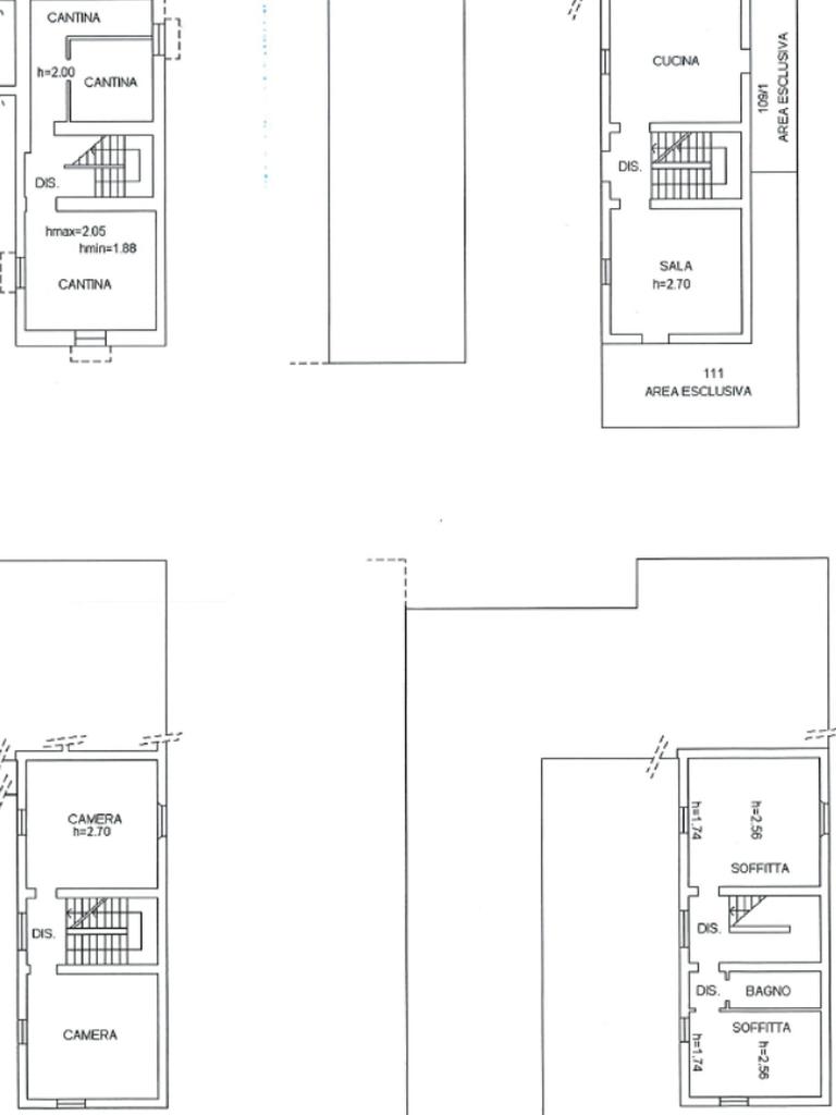
L'agenzia immobiliare Tecnovignola srl, affiliata Tecnocasa di Vignola propone in vendita nel comune di Savignano sul Panaro, località Mulino, una soluzione semindipendente terra-cielo con spazi ampi e luminosi, ideale per chi cerca spazio e funzionalità ad un prezzo accessibile.


L’immobile è dotato di un pratico soggiorno con cucina separata, dal quale si può accedere all’area cortiliva pavimentata, interamente recintata e protetta da una rigogliosa siepe.
Nelle fredde giornate invernali è possibile riscaldarsi anche con il camino.


La zona notte è composta da due camere da letto matrimoniali, con metratura generosa.
Vi sono inoltre al secondo ed ultimo piano due ampi vani ad uso soffitta, ben fruibili per tutte le esigenze della famiglia ed un bagno con doccia.


Sia la zona giorno che la zona notte è dotato di impianto di climatizzazione con pompa di calore.


Al piano interrato vi sono vani ad uso cantina in ottimo stato, utili per ricavarci altri vani accessori (es tavernetta o lavanderia).
Completa la proprietà una autorimessa al piano terra.


Per informazioni e appuntamenti contattare il numero 059 76 10 02 o 392 1780 728 opprue mandare una mail a moha1

Mostra tutto

Nelle vicinanze

Trasporto pubblico Trasporto pubblico
Savignano Mulino
Savignano Mulino
360 m
Savignano Comune
Savignano Comune
1,3 Km
Savignano sul Panaro Mulino
Savignano sul Panaro Mulino
120 m
Savignano Trattoria (Seta)
Savignano Trattoria (Seta)
1,3 Km
Ricariche auto elettriche Ricariche auto elettriche
Savignano sul Panaro Claudia | EnelX
210 m
EnelX fast Savignano sul Panaro
920 m
Hera Parco delle Città Gemellate e Amiche Brodano
2,2 Km
Duferco Ospedale di Vignola
2,9 Km
Scuole Scuole
Scuola elementare Arsenio Crespellani
1,7 Km
Scuola Primaria G. Mazzini
2,8 Km
Farmacia Farmacia
Farmacia
1,4 Km
Farmacia Comunale Giovanna Carbonara
2,1 Km
farmacia comunale
2,6 Km
Ospedali Ospedali
Ospedali
2,9 Km
Supermercati Supermercati
conad marcopolo
2,6 Km
Coop "I Ciliegi"
2,6 Km
Supermercati
2,6 Km
Negozi Negozi
Tigota
2,6 Km
Ristoranti Ristoranti
Il Primo Fiore
2,0 Km
Osteria Clo' Filomena
2,0 Km
Trattoria Sant Antonio
2,3 Km
Sushiko
2,6 Km
Sole Luna Piadineria
2,8 Km
Mostra tutto

Caratteristiche

Rif.:
61210148
Piano:
Su più livelli di 3
Totale piani:
3
Box:
1
Posti auto:
1
Camere da letto:
2
Mostra tutto
Prezzo Prezzo
€ 230.000
Rata mutuo Rata mutuo
€ 1.092 / mese
Spese annue Spese annue
€ 0
Proponi il tuo prezzoProponi il tuo prezzo

Classe Energetica

G
G
G
G
G
G
G
G
G
EP invernale del fabbricato:
EP estiva del fabbricato:
Anno di costruzione:
1960
Riscaldamento:
Autonomo
Tipo impianto:
A radiatori
Tipo alimentazione:
Metano

Ti interessa visionare l'immobile?

Fissa un appuntamento  Fissa un appuntamento

Richiedi informazioni

Clicca su Leggi per aprire l'informativa
* Questi campi sono obbligatori

Calcola il tuo mutuo

Semplice e senza impegno
Anticipo

( % )
Mutuo

( % )

pochi semplici passi

inserisci i tuoi dati
Questionario completato
Grazie per aver richiesto un appuntamento senza impegno con un nostro Consulente del Credito e Assicurativo.

Hai inserito correttamente tutti i dati necessari e a breve riceverai una e-mail con un link da convalidare per inviare i tuoi dati.
Affiliato
Tecnovignola Srl
Via Nino Tavoni, 1 41058 Vignola (MO)

Il nostro staff


  • Elena Vezzani
    Affiliata

  • Fabrizio Bassetto
    Affiliato

  • Francesca De Angelis
    Coordinatrice

  • Ylenia La Marca
    Collaboratrice

  • Riccardo Savorani
    Collaboratore
Via Nino Tavoni, 1 41058 Vignola (MO)
Zona: Vignola – Savignano S.P. – Marano S.P. – Castelvetro di Modena – Guiglia – Spilamberto
Mostra su mappa
Orari: Dal lunedì al venerdì dalle ore 9 alle ore 13 e dalle ore 15 alle ore 20. Sabato dalle ore 9 alle ore 13
Affiliato
Tecnovignola Srl
Via Nino Tavoni, 1 41058 Vignola (MO)

2026 Tecnocasa Franchising S.p.A. - P. IVA 08365160152 - Via Monte Bianco 60/A 20089 Rozzano (MI). Ogni agenzia ha un proprio titolare ed è autonoma. Privacy policy | Policy utilizzo | Cookie policy