Attico in vendita

Vignola, Via Libertà
€ 350.000
5 locali 5 locali
230 Mq 230 Mq
2 bagni 2 bagni

Attico in vendita

Vignola, Via Libertà

Descrizione annuncio

VIGNOLA - ZONA SCUOLE

L'agenzia immobiliare Tecnocasa di Vignola, sita in via Nino Tavoni propone in vendita attico su due livelli nel cuore del comune di Vignola, ideale per chi cerca spazio e comodità.

Questa proprietà si sviluppa su due livelli, offrendo ampie metrature per soddisfare ogni esigenza abitativa. L'attico, punto di forza dell'immobile, regala una vista panoramica e una luminosità naturale.

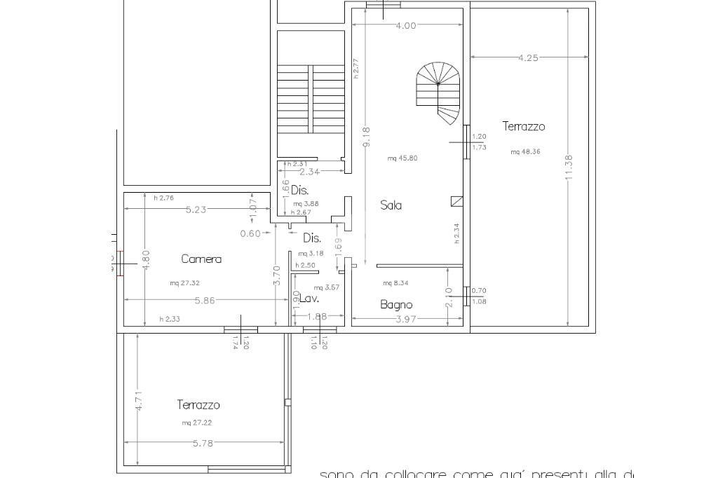
La disposizione interna garantisce spazio sufficiente per famiglie numerose o per chi desidera avere stanze aggiuntive per ospiti o studio; in particolare l'immobile si compone di ingresso al secondo piano su sala con balcone, cucina abitabile, disimpegno notte con split per l'aria condizionata, tre camere da letto, due delle quali con balcone ed un bagno.

Al piano terzo è presente una sala con terrazzo di 48 mq, camera matrimoniale anch'essa con terrazzo di 27 mq ed aria condizionata, bagno, e lavanderia con depuratore d'acqua.

La soluzione è completa di garage e cantina al piano interrato.

L'immobile si trova in una zona comoda, ben collegata ai principali servizi ed infrastrutture. Una soluzione abitativa che coniuga spazio e funzionalità, perfetta per chi desidera vivere in un contesto tranquillo senza rinunciare alla vicinanza con il centro.

Per informazioni o per fissare un appuntamento contattare il numero 059 761002 oppure inviare una mail a

Mostra tutto

Nelle vicinanze

Trasporto pubblico Trasporto pubblico
Vignola
Vignola
890 m
Savignano Comune
Savignano Comune
2,8 Km
Vignola Vittorio Veneto
Vignola Vittorio Veneto
350 m
Vignola Terminal
Vignola Terminal
410 m
Ricariche auto elettriche Ricariche auto elettriche
Duferco Ospedale di Vignola
1,0 Km
Savignano sul Panaro Rubicone | EnelX
1,8 Km
Hera Parco delle Città Gemellate e Amiche Brodano
2,0 Km
Savignano sul Panaro Artigianato | EnelX
2,4 Km
Scuole Scuole
Scuole
170 m
Scuola Superiore Primo Levi
200 m
Scuola Superiore I.T.C. Agostino Paradisi
210 m
Scuola Media L.A.Muratori
340 m
Scuola Elementare Cimarosa
440 m
Farmacia Farmacia
Vignolese
560 m
farmacia comunale
1,6 Km
Farmacia Comunale Giovanna Carbonara
2,2 Km
Farmacia
3,0 Km
Ospedali Ospedali
Ospedali
1,1 Km
Supermercati Supermercati
Pam
860 m
Supermercati
1,4 Km
Coop "I Ciliegi"
1,4 Km
conad marcopolo
1,6 Km
Negozi Negozi
Conad
310 m
Selmi
940 m
Tigota
1,6 Km
Bar Bar
3001
90 m
Viola
840 m
Bar Luna
1,3 Km
Ristoranti Ristoranti
Pizzeria La Smorfia
500 m
PizziKotto
850 m
Deniz Kebab
960 m
Osteria della Luna
1,1 Km
La Formica
1,6 Km
Mostra tutto

Caratteristiche

Rif.:
61015878
Piano:
2 di 3 (Piano su più livelli)
Box:
1
Balconi:
3
Terrazzi:
2
Camere da letto:
4
Mostra tutto
Prezzo Prezzo
€ 350.000
Rata mutuo Rata mutuo
€ 1.661 / mese
Spese annue Spese annue
€ 1.000
Proponi il tuo prezzoProponi il tuo prezzo

Classe Energetica

F
F
F
F
F
F
F
F
F
EP globale non rinnovabile:
237.19 kW h/m² anno
EP invernale del fabbricato:
EP estiva del fabbricato:
Anno di costruzione:
1977
Riscaldamento:
Autonomo
Tipo impianto:
A radiatori
Tipo alimentazione:
Metano

Ti interessa visionare l'immobile?

Fissa un appuntamento  Fissa un appuntamento

Richiedi informazioni

Clicca su Leggi per aprire l'informativa
* Questi campi sono obbligatori

Calcola il tuo mutuo

Semplice e senza impegno
Anticipo

( % )
Mutuo

( % )

pochi semplici passi

inserisci i tuoi dati
Questionario completato
Grazie per aver richiesto un appuntamento senza impegno con un nostro Consulente del Credito e Assicurativo.

Hai inserito correttamente tutti i dati necessari e a breve riceverai una e-mail con un link da convalidare per inviare i tuoi dati.
Affiliato
Tecnovignola Srl
Via Nino Tavoni, 1 41058 Vignola (MO)

Il nostro staff


  • Elena Vezzani
    Affiliata

  • Fabrizio Bassetto
    Affiliato

  • Francesca De Angelis
    Coordinatrice

  • Ylenia La Marca
    Collaboratrice

  • Riccardo Savorani
    Collaboratore
Via Nino Tavoni, 1 41058 Vignola (MO)
Zona: Vignola – Savignano S.P. – Marano S.P. – Castelvetro di Modena – Guiglia – Spilamberto
Mostra su mappa
Orari: Dal lunedì al venerdì dalle ore 9 alle ore 13 e dalle ore 15 alle ore 20. Sabato dalle ore 9 alle ore 13
Affiliato
Tecnovignola Srl
Via Nino Tavoni, 1 41058 Vignola (MO)

2026 Tecnocasa Franchising S.p.A. - P. IVA 08365160152 - Via Monte Bianco 60/A 20089 Rozzano (MI). Ogni agenzia ha un proprio titolare ed è autonoma. Privacy policy | Policy utilizzo | Cookie policy