Quadrilocale in vendita

Vignola, Via cesare battisti
€ 179.000
Prezzo aggiornato
4 locali 4 locali
102 Mq 102 Mq
2 bagni 2 bagni

Quadrilocale in vendita

Vignola, Via cesare battisti

Descrizione annuncio

VIGNOLA - CENTRO

L'agenzia immobiliare Tecnocasa di Vignola, sita in via Nino Tavoni propone in vendita nel cuore di Vignola un appartamento situato al secondo piano di un edificio dotato di ascensore.

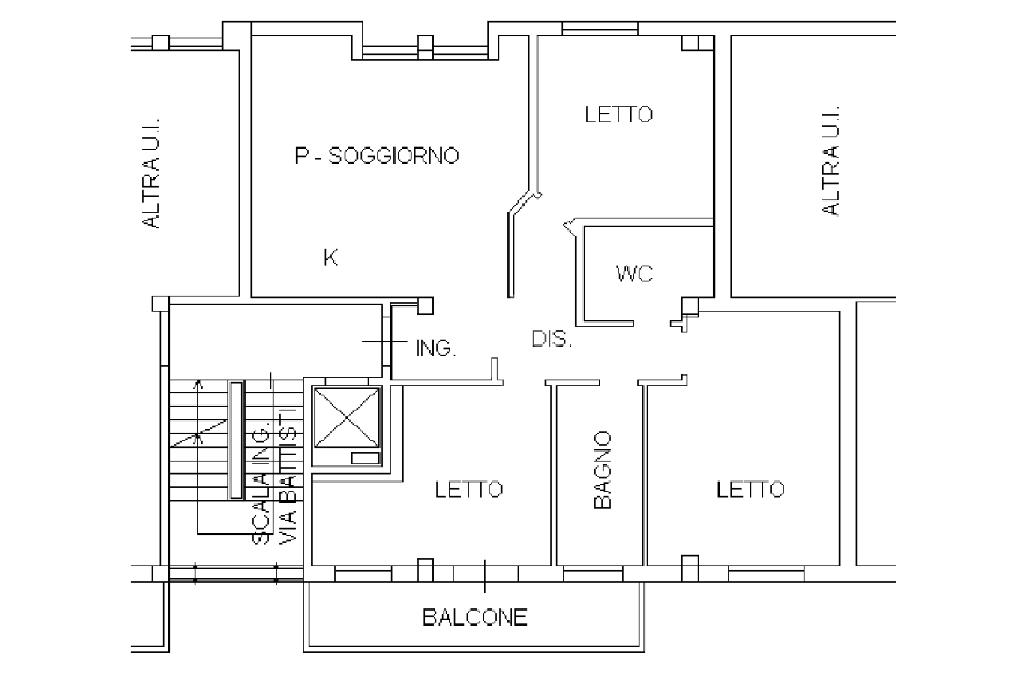
L'immobile, costruito nel 1971, offre una disposizione funzionale con quattro locali, ideale per chi cerca spazio e comodità.

La zona giorno si compone di una sala luminosa con angolo cottura, perfetta per chi ama cucinare e intrattenere.

Le tre camere da letto garantiscono comfort e privacy, mentre i due bagni, uno recentemente ristrutturato, aggiungono un tocco di modernità.

Un balcone offre uno spazio esterno per momenti di relax.

Completano la proprietà una cantina e un garage, che assicurano praticità e spazio aggiuntivo per lo stoccaggio.

La posizione centrale dell'appartamento permette di accedere facilmente a tutti i servizi e le comodità che Vignola ha da offrire, rendendolo una scelta ideale per famiglie e professionisti.

Per informazioni o per visionare l'immobile contattare il numero 059 761002 oppure inviare una mail a moha1.

Mostra tutto

Nelle vicinanze

Trasporto pubblico Trasporto pubblico
Vignola
Vignola
410 m
Savignano Comune
Savignano Comune
1,8 Km
Vignola Battisti
Vignola Battisti
50 m
Vignola
Vignola
110 m
Ricariche auto elettriche Ricariche auto elettriche
Duferco Ospedale di Vignola
540 m
Savignano sul Panaro Rubicone | EnelX
1,0 Km
Hera Parco delle Città Gemellate e Amiche Brodano
1,7 Km
EnelX fast Savignano sul Panaro
2,2 Km
Savignano sul Panaro Artigianato | EnelX
2,4 Km
Scuole Scuole
Scuola Primaria G. Mazzini
430 m
Scuola Elementare Jacopo Barozzi
450 m
Scuole
530 m
Scuola Media L.A.Muratori
870 m
Scuola Superiore I.T.C. Agostino Paradisi
1,1 Km
Farmacia Farmacia
Vignolese
1,4 Km
farmacia comunale
1,5 Km
Farmacia
1,9 Km
Farmacia Comunale Giovanna Carbonara
1,9 Km
Ospedali Ospedali
Ospedali
480 m
Supermercati Supermercati
Supermercati
1,1 Km
Coop "I Ciliegi"
1,1 Km
Pam
1,3 Km
conad marcopolo
1,5 Km
Negozi Negozi
Selmi
230 m
Conad
1,2 Km
Tigota
1,5 Km
Bar Bar
Viola
320 m
3001
1,3 Km
Bar Luna
2,1 Km
Ristoranti Ristoranti
Deniz Kebab
250 m
Osteria della Luna
270 m
Pizzeria La Smorfia
710 m
La Formica
910 m
PizziKotto
1,4 Km
Mostra tutto

Caratteristiche

Rif.:
61108463
Piano:
2 di 2 con ascensore (ultimo Piano)
Box:
1
Balconi:
1
Camere da letto:
3
Arredamento:
Parziale
Mostra tutto
Prezzo Prezzo
€ 179.000
Rata mutuo Rata mutuo
€ 850 / mese
Spese annue Spese annue
€ 1.660
Proponi il tuo prezzoProponi il tuo prezzo

Classe Energetica

G
G
G
G
G
G
G
G
G
EP globale non rinnovabile:
215.63 kW h/m² anno
EP invernale del fabbricato:
EP estiva del fabbricato:
Anno di costruzione:
1971
Riscaldamento:
Centralizzato
Tipo impianto:
A radiatori
Tipo alimentazione:
Metano

Prezzo ridotto di €1 (4%%)

Ti interessa visionare l'immobile?

Fissa un appuntamento  Fissa un appuntamento

Richiedi informazioni

Clicca su Leggi per aprire l'informativa
* Questi campi sono obbligatori

Calcola il tuo mutuo

Semplice e senza impegno
Anticipo

( % )
Mutuo

( % )

pochi semplici passi

inserisci i tuoi dati
Questionario completato
Grazie per aver richiesto un appuntamento senza impegno con un nostro Consulente del Credito e Assicurativo.

Hai inserito correttamente tutti i dati necessari e a breve riceverai una e-mail con un link da convalidare per inviare i tuoi dati.
Affiliato
Tecnovignola Srl
Via Nino Tavoni, 1 41058 Vignola (MO)

Il nostro staff


  • Elena Vezzani
    Affiliata

  • Fabrizio Bassetto
    Affiliato

  • Francesca De Angelis
    Coordinatrice

  • Ylenia La Marca
    Collaboratrice

  • Riccardo Savorani
    Collaboratore
Via Nino Tavoni, 1 41058 Vignola (MO)
Zona: Vignola – Savignano S.P. – Marano S.P. – Castelvetro di Modena – Guiglia – Spilamberto
Mostra su mappa
Orari: Dal lunedì al venerdì dalle ore 9 alle ore 13 e dalle ore 15 alle ore 20. Sabato dalle ore 9 alle ore 13
Affiliato
Tecnovignola Srl
Via Nino Tavoni, 1 41058 Vignola (MO)

2026 Tecnocasa Franchising S.p.A. - P. IVA 08365160152 - Via Monte Bianco 60/A 20089 Rozzano (MI). Ogni agenzia ha un proprio titolare ed è autonoma. Privacy policy | Policy utilizzo | Cookie policy