Quadrilocale in vendita

Vignola, Via callas
€ 335.000
4 locali 4 locali
115 Mq 115 Mq
2 bagni 2 bagni

Quadrilocale in vendita

Vignola, Via callas

Descrizione annuncio

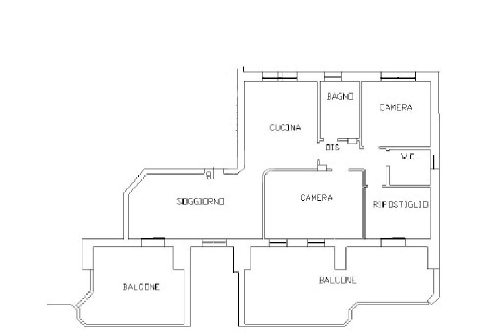
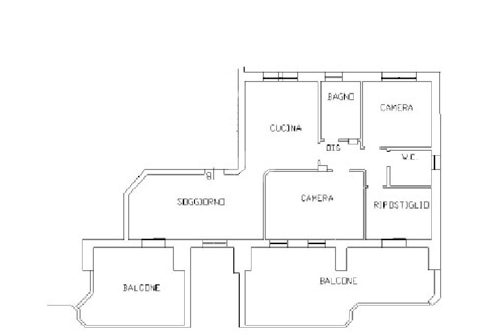
L'agenzia immobiliare Tecnovignola srl, propone in vendita a Vignola, in zona Marco Polo, elegante appartamento, finemente ristrutturato posto al primo piano in piccolo contesto.

Esso è situato nella zona residenziale più ricercata, quella nelle vicinanze del Marco Polo, ben urbanizzata e vicina a tutti i servizi principali della città.

La palazzina, di sole 6 unità abitative, è parzialmente in pietra a vista e parzialmente intonacata e tinteggiata con le autorimesse poste al piano interrato.

Internamente, si compone di ingresso su soggiorno con cucina abitabile, zona notte composta da 3 camere da letto ( una delle quali catastalmente ripostiglio), due bagni e due meravigliosi terrazzi loggiati e ben fruibili nella zona giorno e nella zona notte.

L'immobile è dotato di impianto di climatizzazione sia nella zona giorno che nella zona notte, impianto di allarme, caldaia a condensazione e tendoni parasole elettrici.

il riscaldamento è a pavimento.

L'immobile, sebbene di costruzione recente, è stato ristrutturato nel 2019.

Completa la proprietà una autorimessa doppia di 34 mq posta al piano interrato.

Un'opportunità interessante per chi desidera vivere in una zona ben servita, senza rinunciare alla tranquillità.

Per ulteriori informazioni potete contattare il 059761002 oppure il 3495650166 oppure potete scrivere una mail a moha1.

Mostra tutto

Nelle vicinanze

Trasporto pubblico Trasporto pubblico
Vignola
Vignola
1,4 Km
Savignano Comune
Savignano Comune
1,9 Km
Vignola
Vignola
1,4 Km
Vignola Fs (Seta)
Vignola Fs (Seta)
1,5 Km
Ricariche auto elettriche Ricariche auto elettriche
Hera Parco delle Città Gemellate e Amiche Brodano
240 m
Duferco Ospedale di Vignola
1,2 Km
EnelX fast Savignano sul Panaro
2,2 Km
Savignano sul Panaro Claudia | EnelX
2,6 Km
Savignano sul Panaro Rubicone | EnelX
2,7 Km
Scuole Scuole
Scuola Primaria G. Mazzini
1,3 Km
Scuole
1,6 Km
Scuola Media L.A.Muratori
1,6 Km
Scuola Superiore I.T.C. Agostino Paradisi
1,7 Km
Scuola Superiore Primo Levi
1,7 Km
Farmacia Farmacia
farmacia comunale
250 m
Farmacia Comunale Giovanna Carbonara
370 m
Vignolese
1,5 Km
Farmacia
2,2 Km
Ospedali Ospedali
Ospedali
1,2 Km
Supermercati Supermercati
conad marcopolo
260 m
Coop "I Ciliegi"
590 m
Supermercati
600 m
Pam
1,1 Km
Negozi Negozi
Tigota
260 m
Conad
1,6 Km
Selmi
1,7 Km
Bar Bar
Bar Luna
1,6 Km
Viola
1,7 Km
3001
1,9 Km
Ristoranti Ristoranti
Sushiko
270 m
la campagnola
390 m
PizziKotto
1,1 Km
Deniz Kebab
1,8 Km
Pizzeria La Smorfia
1,9 Km
Mostra tutto

Caratteristiche

Rif.:
61117519
Piano:
1 di 3 (Piano basso)
Box:
1
Terrazzi:
2
Camere da letto:
2
Arredamento:
Assente
Mostra tutto
Prezzo Prezzo
€ 335.000
Rata mutuo Rata mutuo
€ 1.590 / mese
Spese annue Spese annue
€ 850
Proponi il tuo prezzoProponi il tuo prezzo

Classe Energetica

C
C
C
C
C
C
C
C
C
Anno di costruzione:
2006
Riscaldamento:
Autonomo
Tipo impianto:
A pavimento
Tipo alimentazione:
Metano

Ti interessa visionare l'immobile?

Fissa un appuntamento  Fissa un appuntamento

Richiedi informazioni

Clicca su Leggi per aprire l'informativa
* Questi campi sono obbligatori

Calcola il tuo mutuo

Semplice e senza impegno
Anticipo

( % )
Mutuo

( % )

pochi semplici passi

inserisci i tuoi dati
Questionario completato
Grazie per aver richiesto un appuntamento senza impegno con un nostro Consulente del Credito e Assicurativo.

Hai inserito correttamente tutti i dati necessari e a breve riceverai una e-mail con un link da convalidare per inviare i tuoi dati.
Affiliato
Tecnovignola Srl
Via Nino Tavoni, 1 41058 Vignola (MO)

Il nostro staff


  • Elena Vezzani
    Affiliata

  • Fabrizio Bassetto
    Affiliato

  • Francesca De Angelis
    Coordinatrice

  • Ylenia La Marca
    Collaboratrice

  • Riccardo Savorani
    Collaboratore
Via Nino Tavoni, 1 41058 Vignola (MO)
Zona: Vignola – Savignano S.P. – Marano S.P. – Castelvetro di Modena – Guiglia – Spilamberto
Mostra su mappa
Orari: Dal lunedì al venerdì dalle ore 9 alle ore 13 e dalle ore 15 alle ore 20. Sabato dalle ore 9 alle ore 13
Affiliato
Tecnovignola Srl
Via Nino Tavoni, 1 41058 Vignola (MO)

2026 Tecnocasa Franchising S.p.A. - P. IVA 08365160152 - Via Monte Bianco 60/A 20089 Rozzano (MI). Ogni agenzia ha un proprio titolare ed è autonoma. Privacy policy | Policy utilizzo | Cookie policy