Casa indipendente in vendita

Vignola, Via per Spilamberto - Brodano
€ 240.000
Prezzo aggiornato
3 locali 3 locali
172 Mq 172 Mq
2 bagni 2 bagni

Casa indipendente in vendita

Vignola, Via per Spilamberto - Brodano

Descrizione annuncio

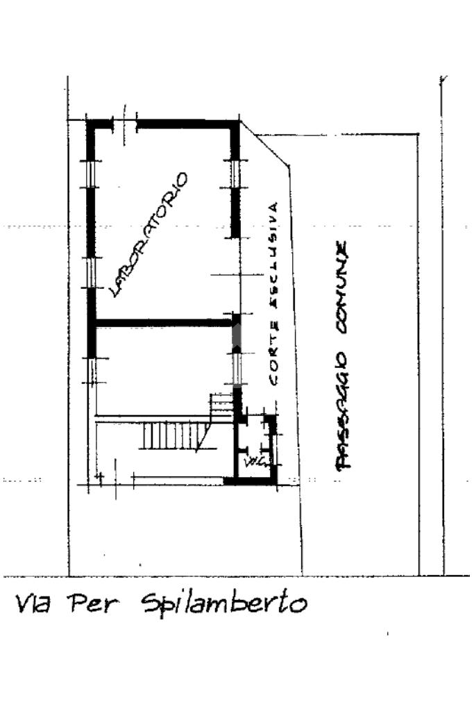
L'agenzia immobiliare Tecnocasa di Vignola, sita in via Nino Tavoni propone in vendita nella località di Brodano, una casa indipendente su quattro lati da ristrutturare, costruita nel 1970.

L'immobile, di 172 mq, si sviluppa su più livelli e offre spazi versatili e funzionali.

Al piano terra, un ampio laboratorio di 54 mq, utilizzabile come garage ed una cantina con bagno di servizio, offrono molteplici possibilità di utilizzo.

Un piccolo giardino privato circonda l'ingresso indipendente, ideale per momenti di relax all'aperto.

La casa dispone di due camere, un bagno ed uno spazioso soggiorno, oltre ad un balcone che arricchisce la zona giorno.

Al primo piano, vi è la possibilità di creare un monolocale, perfetto per ospiti o per esigenze abitative diverse.

L'assenza di spese condominiali e la presenza di aria condizionata completano l'offerta di questa abitazione, che rappresenta una soluzione ideale per chi cerca indipendenza e comfort.

Per informazioni o per fissare una visita chiamare il numero 059 761002 oppure inviare una mail a moha1

Mostra tutto

Nelle vicinanze

Trasporto pubblico Trasporto pubblico
Savignano Comune
Savignano Comune
1,9 Km
Vignola
Vignola
1,9 Km
Vignola
Vignola
1,9 Km
Vignola Fs (Seta)
Vignola Fs (Seta)
1,9 Km
Ricariche auto elettriche Ricariche auto elettriche
Hera Parco delle Città Gemellate e Amiche Brodano
400 m
Duferco Ospedale di Vignola
1,7 Km
EnelX fast Savignano sul Panaro
2,0 Km
Savignano sul Panaro Claudia | EnelX
2,2 Km
Scuole Scuole
Scuola Primaria G. Mazzini
1,7 Km
Scuole
2,1 Km
Scuola Media L.A.Muratori
2,1 Km
Scuola Superiore I.T.C. Agostino Paradisi
2,2 Km
Scuola elementare Arsenio Crespellani
2,2 Km
Farmacia Farmacia
Farmacia Comunale Giovanna Carbonara
270 m
farmacia comunale
770 m
Vignolese
2,0 Km
Farmacia
2,2 Km
Ospedali Ospedali
Ospedali
1,7 Km
Supermercati Supermercati
conad marcopolo
790 m
Coop "I Ciliegi"
1,1 Km
Supermercati
1,1 Km
Pam
1,6 Km
Negozi Negozi
Tigota
780 m
Selmi
2,1 Km
Conad
2,2 Km
Bar Bar
Bar Luna
2,1 Km
Viola
2,1 Km
3001
2,4 Km
Ristoranti Ristoranti
la campagnola
780 m
Sushiko
790 m
PizziKotto
1,6 Km
Deniz Kebab
2,3 Km
Pizzeria La Smorfia
2,4 Km
Mostra tutto

Caratteristiche

Rif.:
61167061
Piano:
Su più livelli di 2
Totale piani:
2
Box:
1
Balconi:
1
Camere da letto:
2
Mostra tutto
Prezzo Prezzo
€ 240.000
Rata mutuo Rata mutuo
€ 1.139 / mese
Spese annue Spese annue
€ 0
Proponi il tuo prezzoProponi il tuo prezzo

Classe Energetica

G
G
G
G
G
G
G
G
G
EP globale non rinnovabile:
573.09 kW h/m² anno
EP invernale del fabbricato:
EP estiva del fabbricato:
Anno di costruzione:
1970
Riscaldamento:
Autonomo
Tipo impianto:
A radiatori
Tipo alimentazione:
Metano

Prezzo ridotto di €1 (12%%)

Ti interessa visionare l'immobile?

Fissa un appuntamento  Fissa un appuntamento

Richiedi informazioni

Clicca su Leggi per aprire l'informativa
* Questi campi sono obbligatori

Calcola il tuo mutuo

Semplice e senza impegno
Anticipo

( % )
Mutuo

( % )

pochi semplici passi

inserisci i tuoi dati
Questionario completato
Grazie per aver richiesto un appuntamento senza impegno con un nostro Consulente del Credito e Assicurativo.

Hai inserito correttamente tutti i dati necessari e a breve riceverai una e-mail con un link da convalidare per inviare i tuoi dati.
Affiliato
Tecnovignola Srl
Via Nino Tavoni, 1 41058 Vignola (MO)

Il nostro staff


  • Elena Vezzani
    Affiliata

  • Fabrizio Bassetto
    Affiliato

  • Francesca De Angelis
    Coordinatrice

  • Ylenia La Marca
    Collaboratrice

  • Riccardo Savorani
    Collaboratore
Via Nino Tavoni, 1 41058 Vignola (MO)
Zona: Vignola – Savignano S.P. – Marano S.P. – Castelvetro di Modena – Guiglia – Spilamberto
Mostra su mappa
Orari: Dal lunedì al venerdì dalle ore 9 alle ore 13 e dalle ore 15 alle ore 20. Sabato dalle ore 9 alle ore 13
Affiliato
Tecnovignola Srl
Via Nino Tavoni, 1 41058 Vignola (MO)

2026 Tecnocasa Franchising S.p.A. - P. IVA 08365160152 - Via Monte Bianco 60/A 20089 Rozzano (MI). Ogni agenzia ha un proprio titolare ed è autonoma. Privacy policy | Policy utilizzo | Cookie policy